Mieszkanie na sprzedaż Olsztyn, Jaroty, Immanuela Kanta

2 pokoje
47.90 m²
9 791,23 zł/m2
2 piętro
BBN-MS-1786
Oblicz ratę kredytu

469 000 zł

Mieszkanie na sprzedaż
Nowa oferta

Szczegóły oferty

Symbol oferty BBN-MS-1786
Powierzchnia 47,90 m²
Powierzchnia użytkowa [m2] 47,90 m²
Powierzchnia balkonów/tarasów 4,00 m²
Liczba pokoi 2
Liczba sypialni 1
Rodzaj budynku blok
Technologia budowlana płyta po termomodernizacji
Standard
Opłaty w czynszu wywóz śmieci, wywóz nieczystości, woda, sprzątanie, prąd, ogrzewanie, gaz, fundusz remontowy, administracja
Piętro 2
Liczba pięter w budynku 4
Stan lokalu bardzo dobry
Mies. czynsz admin. 514 PLN
Okna PCV
Instalacje dobre
Balkon loggia
Liczba balkonów 1
Rok budowy 1992
Plac zabaw tak
Widok na podwórko
Gaz tak - miejski
Woda tak - miejska
Dojazd asfalt
Otoczenie osiedle
Ogrzewanie C.O. miejskie
Usytuowanie środkowe
piwnica tak, 3,00 m²
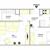
Pomieszczenia
Powierzchnia pokoi 17,4, 12,8 m2
Podłogi pokoi panele podłogowe
Typ kuchni z zabudową kuchenną
Rodzaj kuchni oddzielna i widna
Powierzchnia kuchni 7,5 m2
Podłoga kuchni terakota
Typ łazienki razem z wc
Liczba łazienek 1
Powierzchnia łazienki [m2] 4,3 m2
Glazura łazienki nowego typu
Podłoga łazienki terakota
Wyposażenie łazienki WC, wanna, umywalka, pralka, lustro
Liczba przedpokoi 1
Powierzchnia przedpokoi 5,9 m2
Podłoga przedpokoi terakota

Opis nieruchomości

INFORMACJE POD NUMEREM 695 129 205.
Na sprzedaż 2 pokojowe mieszkanie o powierzchni 47,90 m2 znajdujące się na 2 piętrze przy ulicy Kanta, Osiedle Jaroty w Olsztynie.

Nieruchomość składa się z:
- Salonu 17,4 m2
- Sypialni 12,8 m2
- Kuchni 7,5 m2
- Łazienki z WC 4,3 m2
- Przedpokoju 5,9 m2
- Loggii 4 m2
- Piwnicy 3 m2
Okna PCV dwuszybowe, instalacje elektryczne miedziane, ogrzewanie i ciepła woda z sieci miejskiej. Podłoga panele podłogowe oraz terakota, na ścianach gładzie gipsowe, tapety i glazura.
Mieszkanie słoneczne (strona świata Wschodnio-Zachód), środkowe, ciepłe, zadbane, nie wymaga nakładów większych finansowych, znajduje się w stanie do wprowadzenia.
Czynsz administracyjny 514 zł. liczony na 1 osobę. Lokal posiada status odrębnej własności, nie posiada żadnych zadłużeń ani hipotek.
Cena do Negocjacji.
Mieszkanie idealnie sprawdzi się jako inwestycja pod Wynajem, jak i komfortowe mieszkanie dla par, singli, osób starszych.
Budynek w którym znajduje się przedmiotowe docieplony, wyremontowana klatka schodowa oraz piwnice. Budynek wybudowany w 1992 r.
Cicha i spokojna lokalizacja z dala od głównych ulic miasta. Bardzo ładne zagospodarowanie osiedla na którym znajduje się budynek. Ogólnodostępne miejsca postojowe znajdujące się w przy budynku. W bliskim otoczeniu cała infrastruktura m.in. markety, sklepy osiedlowe, apteki, punkty usługowe, poczta, paczkomaty, restauracje, przedszkole, piekarnia oraz komunikacja miejska (autobus, tramwaj).
Biuro udziela bezpłatnej pomocy przy uzyskaniu kredytu hipotecznego.
CENA 469 000 zł. 

Marek Barański MB NIERUCHOMOŚCI
ulica Żeromskiego 42/1 Olsztyn


Prezentowana oferta ma charakter informacyjny i nie stanowi oferty handlowej w rozumieniu art. 66 par. 1 Kodeksu Cywilnego.

Lokalizacja nieruchomości

Kalkulatory

Kalkulator kredytowy

Wysokość raty

PLN
%

Kalkulator kosztów

Podatek od czynności cywilno-prawnych

Taksa notarialna
(opłata notarialna)

Wniosek o wpis do WKW

VAT od prowizji
agencji nieruchomości

Vat od taksy notarialnej
(opłaty notarialnej)

Prowizja agencji nieruchomości

Wypisy aktu notarialnego

Razem

Uwaga: mogą wystąpić dodatkowe opłaty za założenie księgi wieczystej oraz ustanowienie hipoteki.

PLN
PLN
PLN
PLN
PLN
PLN
%
PLN

Manager

Proszę wprowadzić poprawne imię i nazwisko
Proszę wprowadzić poprawny numer telefonu
Proszę wprowadzić poprawny adres e-mail
Proszę zaznaczyć wymagane zgody
Rozwiąż równanie:
10 2
Niepoprawny wynik