Mieszkanie na wynajem Olsztyn, Pieczewo, Wincentego Witosa

2 pokoje
45.50 m²
39,56 zł/m2
parter
BBN-MW-1184

1 800 zł

Mieszkanie na wynajem

Szczegóły oferty

Symbol oferty BBN-MW-1184
Powierzchnia 45,50 m²
Powierzchnia użytkowa [m2] 45,50 m²
Powierzchnia balkonów/tarasów 25,00 m²
Liczba pokoi 2
Liczba sypialni 1
Rodzaj budynku blok
Technologia budowlana cegła nowa
Kaucja zabezp. 2000
Standard
Opłaty w czynszu wywóz śmieci, woda, ogrzewanie, gaz, fundusz remontowy, CO, administracja
Piętro parter
Liczba pięter w budynku 4
Stan lokalu bardzo dobry
Typ kaucji do uzgodnienia
Mies. czynsz admin. 700 PLN
Okna drewniane
Instalacje dobre
Balkon taras
Rok budowy 2002
Widok na podwórko
Gaz tak - miejski
Woda tak - miejska
Dojazd asfalt
Otoczenie osiedle
Ogrzewanie C.O. miejskie
Umeblowanie pełne
Tarasy taras duży
Usytuowanie dwustronne
Drzwi antywłamaniowe tak
piwnica tak, 3,00 m²
Pomieszczenia
Powierzchnia pokoi 16, 9,8 m2
Podłogi pokoi mozaika parkietowa
Typ kuchni z zabudową kuchenną
Rodzaj kuchni oddzielna i widna
Powierzchnia kuchni 9 m2
Podłoga kuchni terakota
Wyposażenie kuchni płyta gazowa, meble kuchenne na wymiar, okap kuchenny, mikrofalówka, lodówko/zamrażarka, piekarnik elektryczny, garnki, sztućce, wyposażenie drobne, zmywarka
Typ łazienki razem z wc
Liczba łazienek 1
Powierzchnia łazienki [m2] 4,3 m2
Glazura łazienki starszego typu
Podłoga łazienki terakota
Wyposażenie łazienki WC, umywalka, pralka, lustro, kabina prysznicowa
Liczba przedpokoi 1
Powierzchnia przedpokoi 6,4 m2
Podłoga przedpokoi terakota

Opis nieruchomości

INFORMACJE POD NUMEREM 695 129 205.
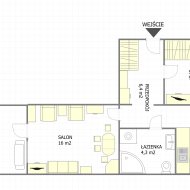
Na Wynajem 2 pokojowe mieszkanie o powierzchni 45,5 m2, znajdujące się na parterze przy ulicy Witosa, Osiedle Pieczewo.
Forma Najmu-Najem Okazjonalny
Najem skierowany do osób pracujących, młodych par, małżeństw z dziećmi, bez zwierząt. 


Nieruchomość składa się z Salonu, Sypialni, dużego Tarasu oddzielnej widnej Kuchni z zabudową, Łazienki z WC, Przedpokoju oraz Piwnicy. 
Mieszkanie w pełni wyposażone, umeblowane, ciepłe, środkowe, bardzo zadbane, słoneczne, nie było wcześniej wynajmowane.
Koszta Wynajmu: 1800 zł. (odstępne)+ 700 zł. (czynsz administracyjny)+ gaz i prąd (płatność co 2 miesiące). Kaucja zabezpieczająca 2000 zł. Forma najmu: Najem Okazjonalny okres 1 rok lub dłużej.
Bardzo dobra lokalizacja z dala od głównych ulic miasta, w bliskim otoczeniu cała infrastruktura m.in. sklepy, szkoły, przedszkola, markety, punkty usługowe, restauracje, las, komunikacja miejska (autobus, tramwaj). 

Marek Barański MB NIERUCHOMOŚCI
ul. Żeromskiego 42/1 w Olsztynie.


Prezentowana oferta ma charakter informacyjny, nie stanowi oferty handlowej w rozumieniu Awt.66.par.1 Kodeksu Cywilnego.
 

Manager

Proszę wprowadzić poprawne imię i nazwisko
Proszę wprowadzić poprawny numer telefonu
Proszę wprowadzić poprawny adres e-mail
Proszę zaznaczyć wymagane zgody
Rozwiąż równanie:
13 1
Niepoprawny wynik